AVLU MERCAN - KATLI OTOPARK VE İBB EK HİZMET BİNASI
Lokasyon: Fatih, İstanbul
Proje tipi: Karma
İşveren: İstanbul Büyükşehir Belediyesi
Proje yılı: 2021
İnşaat alanı: 28000 m²
Arsa alanı: 3500 m²
Durumu: Projesi Tamamlandı
Mimari Proje Ekibi:
Kemal Bal, Nil Bıçak, Erol Kalmaz
Statik Proje: Parlar Mühendislik
Mekanik Proje: Deniz Proje
Elektrik Projesi: Deniz Proje
Keşif Metraj: Şantiye Destek
Yapı inşa sırasındaki kalite sapmaları, bütünsel yaklaşımdan uzak ara güçlendirmeler ve iklim etmenlerinden korunamama nedeniyle esaslı bir güçlendirme projesi gerektirmektedir. Bu gereklilik mimari müdahalenin de niteliğini belirlemiştir. Kapsamlı güçlendirme projesinin uygulaması için yapının tüm çevre ve ara duvarları kaldırılacaktır. Döşeme kaplamaları, asma tavanlar, doğramalar, sabit ve hareketli mobilyalar, tesisat ve armatürler sökülecektir. Düşey dolaşım ve yangın senaryosu, otopark dolaşımı, ek işlevler, cephe düzeni vb. başlıklarla esaslı bir tadilat projesi hazırlanılmıştır.
Cepheler
Güçlendirme Projesi kapsamında, Mevcut Durum Raporu 1.1.’de bahsi geçen D Blok cephe kolon güçlendirmeleri kaldırılmış, dekoratif 1.kat çevre kirişi tıraşlanmış, tüm çeper kolon ve kirişleri 20 cm betonarme güçlendirme ile sarılmıştır. Mimari Tadilat Projesinde, bu güçlendirme kararı gereği, tüm doğramaların sökülmesi, tüm cephe ve parapet duvarlarının kaldırılması tercih edilmiştir. Bu elemanlardaki kısmi kırım ve tamir işlerinin ekonomik boyutta verimsiz olacağı, cephenin tek bir düzleme getirilmesinin yalıtım ve cephe katmanlarının detaylandırılmasında kolaylık sağlayacağı gibi nedenler bu tercihi gündeme getirmiştir. Yeni doğrama altı duvarlar kiriş güçlendirmesi üzerine çekilerek yapı cephesi yalıtım katmanı ve mekanik montaj prensibine dayalı cephe kaplaması için tek düzleme getirilmiştir. Güçlendirme perdelerinin bulunduğu köşelerde güçlendirme perdeleri, mevcut yapı aksında konumlandırıldığı için, bu aks aralıklarındaki cephe girintileri metal karkas ile tüm cephe düzlemine çekilmiştir. Cephe kaplama sistemi için 20 cm öngörülmüş, yağmur iniş boruları, yalıtım katmanları vb. bu boşlukta detaylandırılmıştır. Belediye Hizmet Binası için, yaklaşık 120x360cm boyutlarında 3mm kalınlığında mekanik montaj prensibi ile uygulanan seramik cephe kaplama sistemi tercih edilmiştir. Pencerelerde alüminyum doğrama ve alüminyum denizlik/söve seçilmiştir.
Belediye Ek Hizmet Binası Fuat Paşa Caddesi girişi kamusal niteliğini artırmak ve saçak imkânı yaratmak amacıyla yarım aks geri çekilmiştir. Plan şemasının imkân verdiği her kattaki ortak kat balkonları ile cephenin davetkarlığı destekleniştir.
Otopark yapısının güçlendirme prensibi de yukarıda D Blok için zikredilen prensibe dayalıdır. Her iki yapının bir bütün olarak algılanması ve yakın çevresindeki dağınık cephe düzenine ilham oluşturması düşüncesiyle, otopark yapısı da benzer bir renk ve boyutta, fakat yarı geçirgen bir cephe kaplama sistemi ile kaplanmıştır. Alüminyum genişletilmiş metal cephe kaplama panellerinin yaklaşık boyutlandırılması 100x280cm’dir. Cephe bütünlüğü amacıyla otopark yapısındaki kademe çelik kat parapeti ile giderilmiştir. Genişletilmiş metal cephe kaplamasının verdiği %50-70 görüş imkanından başka hem üniversite bakışında hem de manzara cephesinde plan şeması ve bakış zenginliği dikkate alınarak cephe açıklıkları tasarlanmıştır.
Yangın Kaçış Senaryosu
1.3.nolu maddede sözü edilen yangın kaçış senaryosu yetersiz bulunmuş ve kaldırılmıştır. Dolaşımın yeniden ele alındığı tadilat projesi kapsamında İstanbul İtfaiyesi Teknik Büro ile temasa geçilmiş ve yangın senaryosu belirlenmiştir. Buna göre Belediye Ek Hizmet binasında 14-15 ile G-H aksları arasında; otopark yapısında 8-9 ile A-B aksları arasında teras kotundan tüm bodrum katlara kadar sürekli korunumlu birer yangın merdiveni ilave edilmiştir. Hizmet binasındaki merdiven Semaver Sokağı cephesinden (15 m mesafe içinde), otopark yapısındaki ise Fuat Paşa Caddesi yönünden doğrudan sokağa açılmaktadır.
Düşey Dolaşım Şeması
Belediye Ek Hizmet binası B-C ile 14-15 aksları arasında bulunan betonarme merdiven kaldırılarak benzer konumda çelik bir merdiven önerilmiştir. Merdiven evi bitişiğindeki ıslak hacimler bir aks kaldırılarak bu alana biri servis asansörü olmak üzere iki adet asansör yerleştirilmiştir.
Otopark yapısında 8-9 ile J-K aksları arasındaki hasarlı betonarme bir merdiven kaldırılarak yerine çelik merdiven önerilmiştir. 7-8 ile J-K aksları arasındaki asansör kuyusu kullanılarak, manzara cephesi düşey dolaşım aksı asansörle desteklenmiştir.
Teras kotundaki ek işlevler de dikkate alınarak, Fuat Paşa Caddesi otopark yapısının asli girişi olarak görülmüştür. Bu bağlamda Belediye Ek Hizmet yapısına komşu aksta iki adet asansör yarım aks geriye çekilerek yerleştirilmiştir. Böylece belediye girişi, otopark yaya girişi ve araç girişi aynı cephede ve kotta yakın ilişkili çözülebilmiştir. Mevcut düşey dolaşım çekirdeği ile yeni çekirdek her katta otopark yaya akışının güvenli şekilde sağlanacağı ve her iki manzara potansiyelinin kullanılacağı kat holleri olarak kurgulanmıştır. Belediye ek Hizmet binasındaki asansör ve merdiven kümesiyle birlikte bu üç çekirdek, teras kotundaki yeni işlevlerin de dolaşımı şemasını oluşturmuştur.
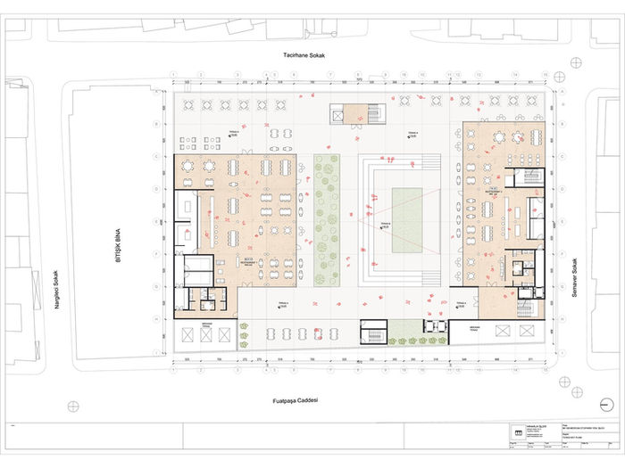
İşlev
Belediye Ek Hizmet Binası tadilat projesi kapsamında ofis yapısı olarak sürdürülmekle beraber, zemin kotu bir etkinlik alanı, bu alanı destekleyici bir fuaye/sergi holü ile kafe nişi ve iki adet atölye/derslik barındıracak şekilde tasarlanmıştır. Böylece yakın çevresindeki ticaret yoğun işlev kümesine kültürel bir nitelik katılması, çevresi için dönüştürücü bir katkı sunması hedeflenmiştir. Üst kotlardaki ofis alanlarına çıkış dolaşım çekirdeği etrafındaki güvenlikli geçiş ile sağlanmıştır. Islak hacimler yeniden düzenlenmiştir.
Otopark yapısında, güçlendirmeden kaynaklı açıklık daralmaları, nitelikli yaya dolaşımının sağlanması, teknik alan ihtiyaçları, yangın merdiveni ilavesi, teras katının işlev değişimi gibi nedenlerle otopark işlevi, araç adeti 460’a düşürülerek sürdürülmüştür. Statik, mekanik ve elektrik projelerinde, temiz yüksekliğin asgari 200cm ve araç park alanında asgari açıklığın 500cm olarak sağlanması ilke olarak benimsenmiştir. Güçlendirme sonrası park nişleri min.500cm, park nişlerine giriş çıkışın yapıldığı yol aksı min.570cm ve rampalar doğrultusundaki yol aksları isen min.500cm olarak çizilmiştir. Cephe kirişlerindeki 20 cm güçlendirme payının, otopark girişlerinde ters kiriş olarak projelendirilmesi sağlanmıştır.
Otopark personel mahalleri ile ıslak hacimler yeniden düzenlenmiştir.
Otopark araç ve yaya dolaşımının kalitesini artırmak amacıyla, trafik yönlendirme grafik çalışması yapılmış ve belirli alanlardaki prensip detayları üretilmiştir.
Cephelerdeki logo ve yönlendirme grafikleri için çalışma yapılmıştır.
Yapının açıldığı manzaranın niteliği teras katı işlevine dair potansiyelleri gündeme getirmiştir. Mevcut D blok çatı katının taşıyıcı sistem niteliği nedeniyle sökülmesi, otopark rampalarının örtüsü olan betonarme kuleleri ile manzara cephesindeki belediye eki ve asansör/merdiven evinin kaldırılması öngörülmüştür. Bu eski yapılaşmaya karşı, orta bölgenin manzaraya doğru açılması ve peyzaja ayrılması, D blok üzerindeki eski kütlenin gabarisine eş, fakat uzun cephelerden birer aks geri çekilen kırma çatılı bir hacim ile, bitişik nizam kısa cephede benzer bir hacim yaratılması düşünülmüştür. Fatih’in tarihi dokusu içinde sıkça karşılaşılan saçaklı revaklarla çevrili avlu tipolojisine benzer bir hayat kurgulanmıştır. Belediye bloğu üzerindeki mekânın Belediye Sosyal Tesisi, diğer mekânın ise restoran vb. bir işlevle donatılabileceği önerilmiştir. Bu iki mekân arasındaki dolaşımı kolaylaştırmak amacıyla teras katındaki kademelenme, orta alandaki amfi/peyzaj dışında aynı kota getirilmiştir. Üniversite cephesindeki asansör ve yangın merdiveni kulesi iki ana kütledekine benzer olarak kenetli metal çatı ile örtülürken, boğaz manzarası cephesindeki asansör ve merdiven kulesi tümüyle şeffaf tutulmak istenmiştir.

























